こんにちは!


ワントップハウスウイングタウン岡崎店より新着物件のご紹介です! 


おすすめポイント
日当たり・通風良好!小豆坂小学校・美川中学校区
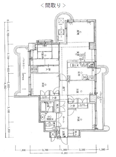
※図面と現況に相違がある場合は現況を優先とします
なお、売却済の場合はあらかじめご了承ください。
❏❏❏❏❏❏❏❏❏❏❏❏❏❏❏❏❏❏❏❏❏❏❏❏❏❏❏❏❏❏❏❏❏❏❏❏
売却物件大募集
◎不動産の売却は「先手必勝」です◎
◎売却をお考えの皆様!今からの準備が必要です◎
★無料査定実施中!
(無料査定・無料相談・無料広告・秘密厳守)★
・ご近所に内緒で売りたい方
・他社の査定額に納得いかない
・ローン支払いの負担を軽くしたい
・離婚するので家を売却したい
・実家に帰る予定
・新しい家に住み替えたい
・転勤が決まった …等
★お急ぎのお客様には「ワントップハウス」が買取致します!
★不動産のことならお気軽にお問い合わせください!
❏❏❏❏❏❏❏❏❏❏❏❏❏❏❏❏❏❏❏❏❏❏❏❏❏❏❏❏❏❏❏❏❏❏❏❏
イクス株式会社 ワントップハウス ウイングタウン岡崎店
〒444-0814
愛知県岡崎市羽根町小豆坂3 ウイングタウン岡崎1F
TEL:0564-47-7744(代表)
MAIL:okazaki-wingtown@onetop-house.jp
Instagram▶ @onetophouse_okazakiwingtown
X(旧:Twitter)▶ @onetop_okazaki
Facebook▶ @okazakiwingtownonetop
------------------------------------------------------------




























