

【リフォーム済】サンシティ伊賀 価格1,990万円(税込) 

2 階部分南向きにつき、陽当たり良好です!
おすすめポイント
ペット飼育可(1 住戸2 匹まで)
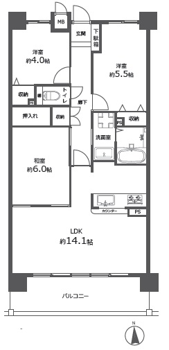
※図面と現況に相違がある場合は現況を優先とします。 なお、売却済の場合はあらかじめご了承ください。
------------------------------------------------------------------------------------------------------------
老人ホーム のご紹介の他に
住まい相談
物件査定
リフォーム 相談等
不動産 のことならお気軽にお問い合わせください。❏❏❏❏❏❏❏❏❏❏❏❏❏❏❏❏❏❏❏❏❏❏❏❏❏❏❏❏❏❏
売却物件大募集
◎不動産の売却は「先手必勝」です◎
◎売却をお考えの皆様!今からの準備が必要です◎
★無料査定実施中!
(無料査定・無料相談・無料広告・秘密厳守)★
・ご近所に内緒で売りたい方
・他社の査定額に納得いかない
・ローン支払いの負担を軽くしたい
・離婚するので家を売却したい
・実家に帰る予定
・新しい家に住み替えたい
・転勤が決まった …等
★お急ぎのお客様には「ワントップハウス」が買取致します!
★不動産のことならお気軽にお問い合わせください!
❏❏❏❏❏❏❏❏❏❏❏❏❏❏❏❏❏❏❏❏❏❏❏❏❏❏❏❏❏❏❏

イクス株式会社 ワントップハウス ウイングタウン岡崎店
〒444-0814
愛知県岡崎市羽根町小豆坂3 ウイングタウン岡崎1F
TEL:0564-47-7744(代表)
MAIL:okazaki-wingtown@onetop-house.jp
------------------------------------------------------




























